Agence immobilière Bouet à Tarascon - Maison et appartement à Tarascon

Contactez nous
04 90 91 59 44

Location Fonds de commerce SAINT-ÉTIENNE-DU-GRÈS

Mandat : 1187

Loué

Fonds de commerce SAINT-ÉTIENNE-DU-GRÈS 50 m²

Description Print This PageImprimer Ajouter à ma sélectionAjouter à ma sélection

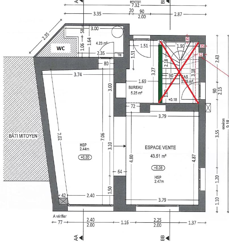
Dans la continuité de l’Avenue de la République, au croisement de l’Avenue des Alpilles, local de plain-pied d’environ 55 m² sur axe très passant.

Il comprend un espace de vente de 43 m² climatisé, un bureau, un vestiaire et des toilettes.

Local en excellent état dans un immeuble rénové. Des travaux seront réalisés par la propriétaire et les établis seront retirés.

LIBRE AU 1er JANVIER 2026.

Les informations sur les risques auxquels ce bien est exposé sont disponibles sur le site Géorisques : www.georisques.gouv.fr.

Loyer : 900 € par mois CC, charges comprises
Charges : 27 € (provision donnant lieu à régularisation annuelle)
Dépôt de garantie : 1746 € TTC
Honoraires à la charge du locataire : 873 € TTC
Dont NC pour l'état des lieux

Informations

Réf.
86213951
Mandat
1187
Type de bien
Fonds de commerce
Ville
SAINT-ÉTIENNE-DU-GRÈS
Année de construction
NC
A vendre / A louer
A louer
Charges locatives
27 €/ mois (provision donnant lieu à régularisation annuelle)
Dépot de garantie
1746 €
Honoraires charge locataire
873 € TTC
Dont NC pour l'état des lieux

Intérieur

Surface Habitable
50 m²
Pièces
4
Chauffage
Individuel, Electrique

Extérieur

Bilan énergétique

Partager sur les réseaux sociaux

Alerte Mandat

Soyez informé si une baisse de prix intervient sur ce mandat.


En soumettant ce formulaire, j'accepte que les informations saisies soient exploitées dans le cadre de mon inscription à une alerte e-mail ou SMS et de la relation commerciale qui peut en découler.

Sauf mention contraire, les prix de vente sont nets, hors frais notariés, d'enregistrement et de publicité foncière et les loyers sont charges comprises.

Mot clé
Philippe BARDI

Philippe BARDI

Votre contact

06 62 70 17 07

immo9@agence-bouet.fr

Contactez nous
Contact Offre Visite En soumettant ce formulaire, j'accepte que les informations saisies soient exploitées dans le cadre de la demande de contact, d'offre ou de rendez-vous de visite et de la relation commerciale qui peut en découler.
Annonces immobilières récentes

Agence immoblière BOUET Tarascon

3, cours Aristide BRIAND

13150 - Tarascon

France

Horaires

Du lundi au jeudi
de : 9h00 à 12h00 et de 14h00 à 18h00
Le vendredi
de : 9h00 à 12h00 et de 14h30 à 17h00
Le samedi de : 9h00 à 12h00

Contactez nous

En soumettant ce formulaire, j'accepte que les informations saisies soient exploitées dans le cadre de la demande de contact et de la relation commerciale qui peut en découler.